Gear Leg Steps
Avionics, airplane covers, tires, handheld radios, GPS receivers, wireless Wx uplink...any product related to backcountry aircraft and flying.
This might be of interest to folks...
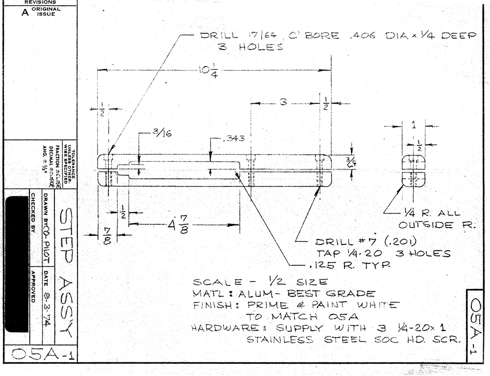
Years ago, I had a 170B with custom gear leg steps which were installed via a field approval. Over the years folks have asked about them from time to time. Here are the drawings if anyone is interested.
[img]cessna_gear_step.jpg[/img]
-

- cessna_gear_step.jpg (227.92 KiB) Viewed 1495 times
-
Bigrenna offline


-
Posts:
2339
- Joined: Sun Sep 25, 2011 4:02 pm
- Location: New England
- Aircraft: C180H / C170B
www.bushwagoneast.com
www.avthreads.com
-
Do you have any pictures you could share?
Kurt
-
G44 offline


-
Posts:
2093
- Joined: Thu Oct 27, 2011 10:46 am
- Location: Michigan
-
Sun Dec 18, 2022 12:47 pm
We’ll that’s cool!
Would these work on a 180/5?
-
NineThreeKilo offline
- Retired
-
Posts:
1679
- Joined: Thu Dec 31, 2009 8:16 pm
- Location: _
-
Mon Dec 19, 2022 10:34 am
G44 wrote:Do you have any pictures you could share?
Kurt
+1
would be great to see them installed
-
corefile offline


-
Posts:
637
- Joined: Tue Jul 03, 2012 1:59 pm
- Location: San Jose, Ca
- Aircraft: Cessna 180 - sold
-
Mon Dec 19, 2022 11:31 am
G44 wrote:Do you have any pictures ...
It's never enough is it... LOL
No. Plane was sold over a decade ago. Current owner is a member here. He may choose to scan and share the 337/FA but I cant speak for him.
-
Bigrenna offline


-
Posts:
2339
- Joined: Sun Sep 25, 2011 4:02 pm
- Location: New England
- Aircraft: C180H / C170B
www.bushwagoneast.com
www.avthreads.com
-
Bigrenna wrote:G44 wrote:Do you have any pictures ...
It's never enough is it... LOL
No. Plane was sold over a decade ago. Current owner is a member here. He may choose to scan and share the 337/FA but I cant speak for him.
Sorry I asked.
Kurt
-
G44 offline


-
Posts:
2093
- Joined: Thu Oct 27, 2011 10:46 am
- Location: Michigan
-
Seems like a decent idea, but why a field approval?
-
ak49flyer offline
-
Posts:
3
- Joined: Tue Mar 06, 2018 12:57 am
- Location: Soldotna
-
Tue Dec 20, 2022 12:19 pm
Thanks for digging, those are cool!
Kurt
-
G44 offline


-
Posts:
2093
- Joined: Thu Oct 27, 2011 10:46 am
- Location: Michigan
-
DISPLAY OPTIONS
Who is online
Users browsing this forum: No registered users and 0 guests